Design Build Remodeling
Phoenix Home Blueprints
Schedule a FREE No Obligation Consultation
 

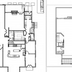
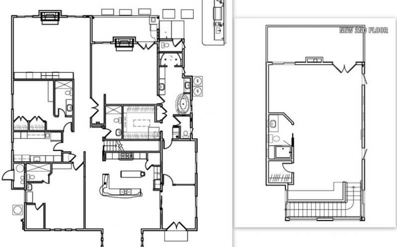
View the blueprints of this beautiful Phoenix, Arizona remodeling project.

 

Our Process

When you consult with us on our services, we go through each step in detail so you know exactly what to expect.
Project Analysis
A Project Consultant will schedule an in-home consultation to learn more about your vision for your project and then will create a plan that matches your needs and budget.
Permitting
We will flesh out your project’s details and provide conceptual drawings for our design team so construction documents can be generated and approved, allowing the project to move forward.
Building Services
During the construction phase of your project, your Project Consultant and Superintendent will meet with you regularly to keep you up to date every step of the way.
Project Close Out
A final walk through and punch list will be completed prior to the close of your project.
Legacy Design Build Remodeling General
From the moment we met the staff until the very end, we trusted that we chose the best team.
Lara E.
Phoenix, AZ
epa